DACHAUSBAU MEHRFAMILIENHAUS
Planung Dachausbau Mehrfamilienhaus Hamburg Uhlenhorst
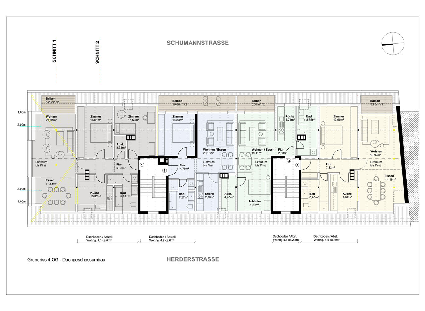
Planung 4 Wohneinheiten, Gesamtwohnfläche 292 m²
Bauherr: privat, 2013
PROJEKTERLÄUTERUNG
Das bestehende Wohn- und Geschäftshaus mit aktuell 15 Mietwohnungen und Ladenflächen
im Erdgeschoss wird durch den Ausbau des Dachgeschosses um 4 Wohnungen
erweitert. Geplant sind zwei 2-Zimmer sowie eine 3- und eine 4-Zimmer-Wohnung
in den Größen von 55 bis 98m². Alle Wohnungen haben zur ruhigen Schumannstrasse
ausgerichtete Balkone. Die durchgängige Ost- West- Orientierung sorgt für eine optimale
Belichtung und Durchlüftung. In den Wohnzimmer- Bereichen wird der Dachraum
bis zum First mit einbezogen, so daß großzügige Raumsituationen entstehen. Die
Wohnung an der Giebelseite des Gebäudes erhält ein bodentiefes Fenster mit Blick zum
Osterbekkanal / Kampnagel.
Die Küchen und Bäder liegen direkt oberhalb der Naßbereiche aus den Regelgeschossen
und werden an die bestehenden Ver- und Entsorgungsstränge angeschlossen.




