REALISIERUNGSWETTBEWERB EINHÄUSCHEN QUERSTRASSE
IM GRÜNDUNGSVIERTEL LÜBECK
Unter Orientierung an der historischen Kubatur und Parzellierung soll im
Gründungsviertel
Lübeck ein Geschosswohnungsbau mit Miet- und
Eigentumswohnungen entstehen.
Ca. ⅓ der Wohnflächen sind für geförderten Wohnungsbau vorgesehen.
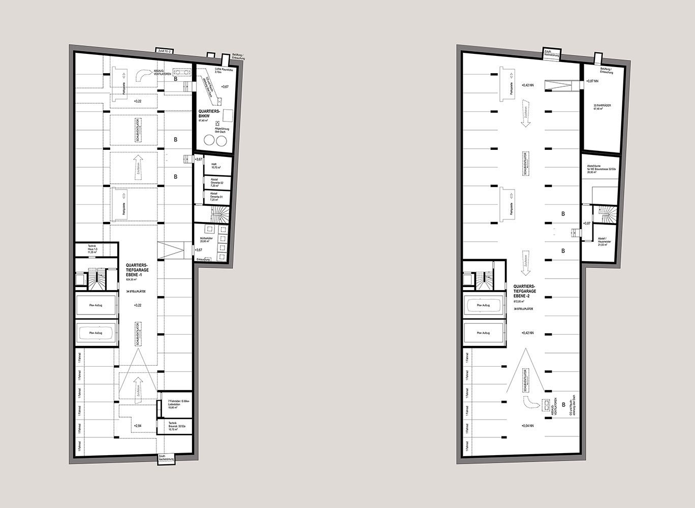
In zwei Untergeschossen ist eine Quartierstiefgarage für das Gründungsviertel im UNESCO-Welterbe „Lübecker Altstadt“ geplant.
März 2017
Auslober: privat, organisiert durch die Hansestadt Lübeck
Visualisierung: Jens Gehrcken
Modell: Wischhusen Modellbau










