Umbau / Wintergarten- Anbau denkmalgeschütztes
Stadthaus Hamburg Harvestehude
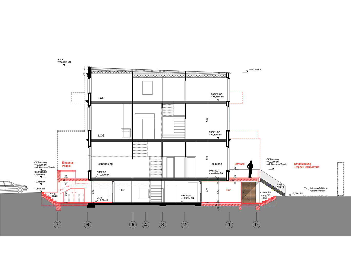
Bei dem Gebäude handelt es sich um eine 3-geschossige denkmalgeschützte Reihenvilla, die sich in ihrer Typologie und Fassadengestaltung in
das Ensemble der historischen Nachbarbebauung einfügt. Das Gebäude ist auf das Jahr 1887 datiert.
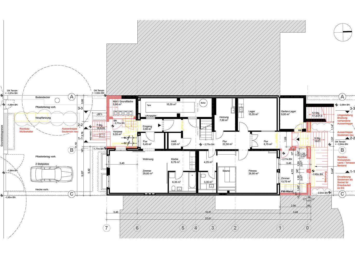
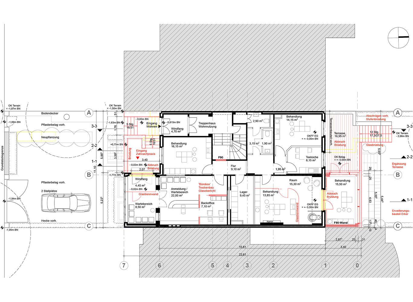
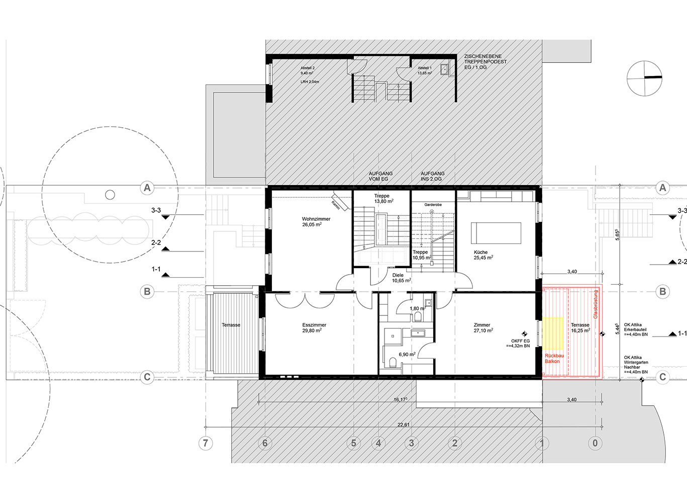
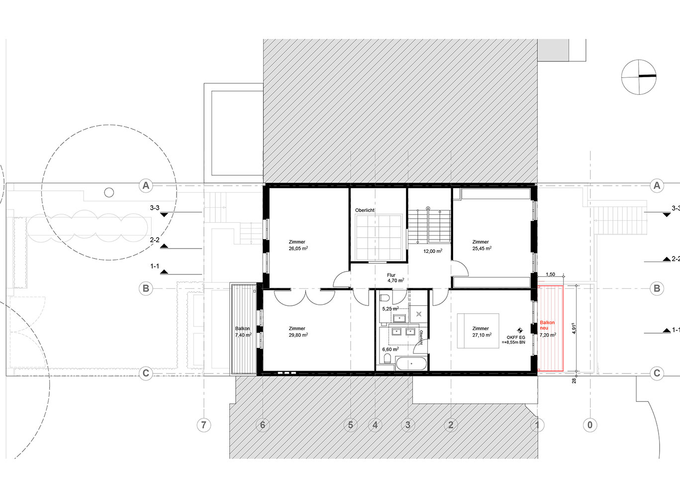
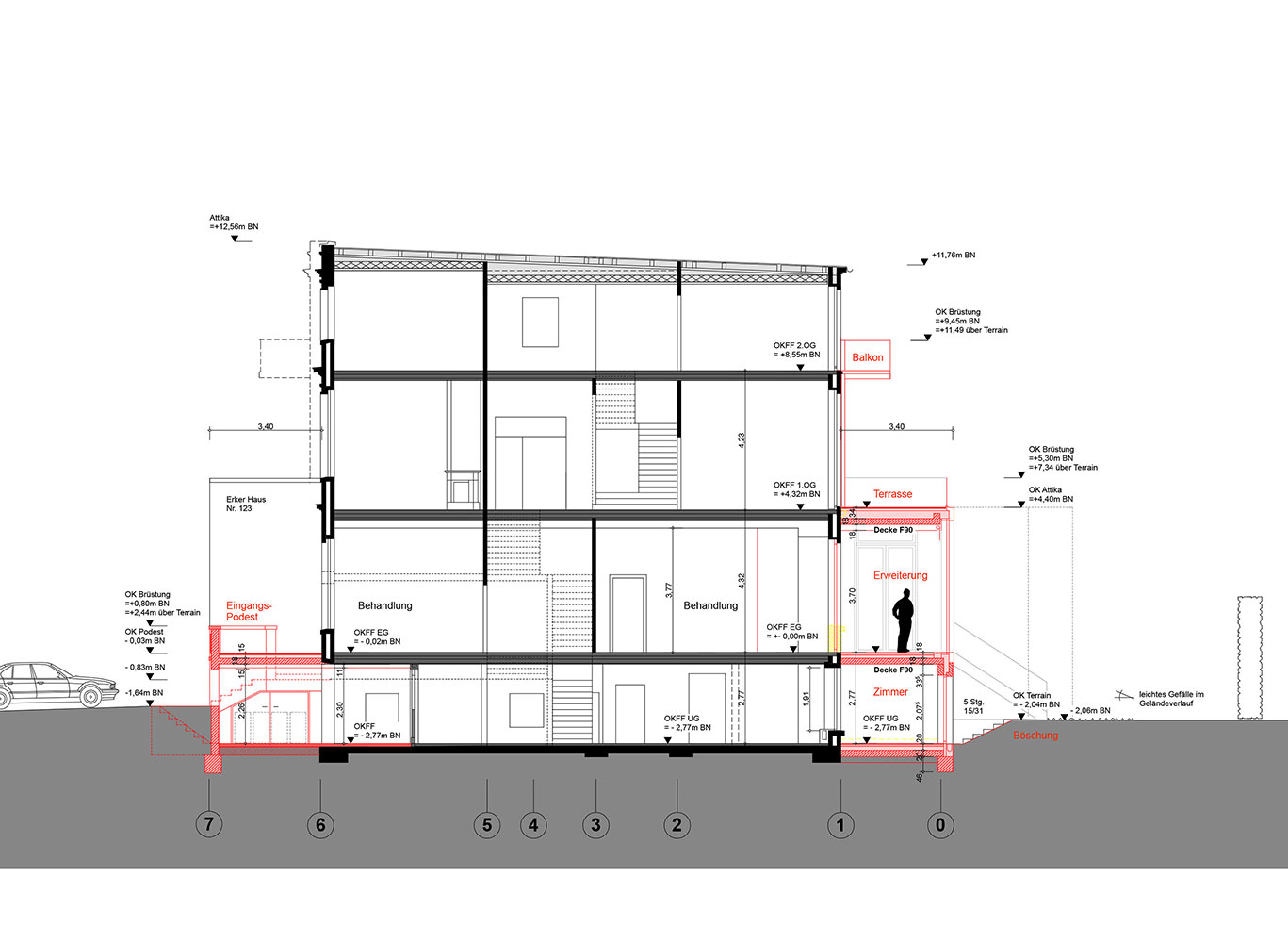
In den beiden Obergeschossen der Reihenvilla befindet sich die durch die Hauseigentümer genutzte Wohnung, der auch die Nebenräume im Souterrain des Hauses zugeordnet sind. Aktuell werden die freiberuflich genutzte Erdgeschoss- Fläche sowie die Wohnnutzung der Antragssteller über dasselbe Treppenhaus erschlossen.
Mithilfe der beantragten Baumaßnahme soll die Erschließung der beiden Nutzungseinheiten voneinander getrennt werden.
Baulich erfolgt die Trennung über die Ausbildung eines neuen Eingangspodestes und die Schaffung eines Einganges seitlich in den vorhandenen Erkerbauteil.
Unterhalb des Eingangspodestes sollen Abstellmöglichkeiten für Fahrräder und Müllbehälter geschaffen werden. In dem Bereich befindet sich auch der Eingang einer kleinen 1-Zimmer- Wohnung.
Ergänzend zur separierten Erschließung soll die Erdgeschoss- Fläche um einen gartenseitigen Erkeranbau erweitert werden. Im gleichen Maß wird das darunterliegende Souterraingeschoss als Sockelbauteil erweitert.
Die durch den Anbau entstehende Dachfläche im 1. Obergeschoss soll als Terrasse für die Wohnnutzung auf der Ebene dienen. Oberhalb des Wintergartenbauteils soll im 2. Obergeschoss ein Balkon ergänzt werden.
Die straßenseitigen Baumaßnahmen knüpfen in Bezug auf ihre Gestaltung direkt an die bestehende Substanz an. Mit der massiv ausgebildeten Brüstung des neuen Außentreppen- Bauteils mit Kassettierung und Pilastermotiv wird die historische Formensprache unmittelbar fortgeführt.
Im Gegensatz dazu setzen sich die gartenseitigen Ergänzungen mit einer modernen Formensprache gestalterisch deutlich ablesbar vom Bestand ab. In ihrem Volumen orientieren sich die Bauteile dabei an dem historischen Vorbild dieses Gebäudetypus. Der Sockelbauteil ist als klar gliederte, Mauerwerkskonstruktion mit weiß verputzter Lochfassade ohne historische Schmuckelemente ausgebildet. Der großzügig verglaste Erkerbauteil wird durch eine schwarz- anthrazit gehaltene Blechattika eingefasst, die sich als Bandmotiv über die Freitreppe bis zum Garten entwickelt. Die Wintergartendecke ist als massive Stahlbetonkonstruktion konzipiert. Die Glasbrüstungen auf den Terrassen und dem neuen Balkon im 2.OG unterstreichen die moderne Architekturauffassung, die den gartenseitigen Erweiterungen zugrunde liegt.
Bauherr: privat
Leistungsphasen 1-4, inklusive denkmalrechtliche Genehmigung








